Project Overview
- Project Name: Nursing Hostel – Katihar Medical College
- Location: Katihar, Bihar, India
- Building Type: Residential Hostel Facility (G+3)
- Built-Up Area: 29,878 sq.ft
- Total Slab Area: 96,562 sq.ft
- Client: Katihar Medical College
- Builder / Contractor: CLEAN SOUND (I) PVT. LTD.
- Project Status: Completed
- Design Scope: Architectural Design, Façade Design, Hostel Planning, Functional Zoning, Circulation Planning
Get a Free Quote
Nursing Hostel – Katihar Medical College
A modern G+3 residential hostel with a central courtyard, efficient room planning, and a clean contemporary facade designed for nursing students.
Project Summary
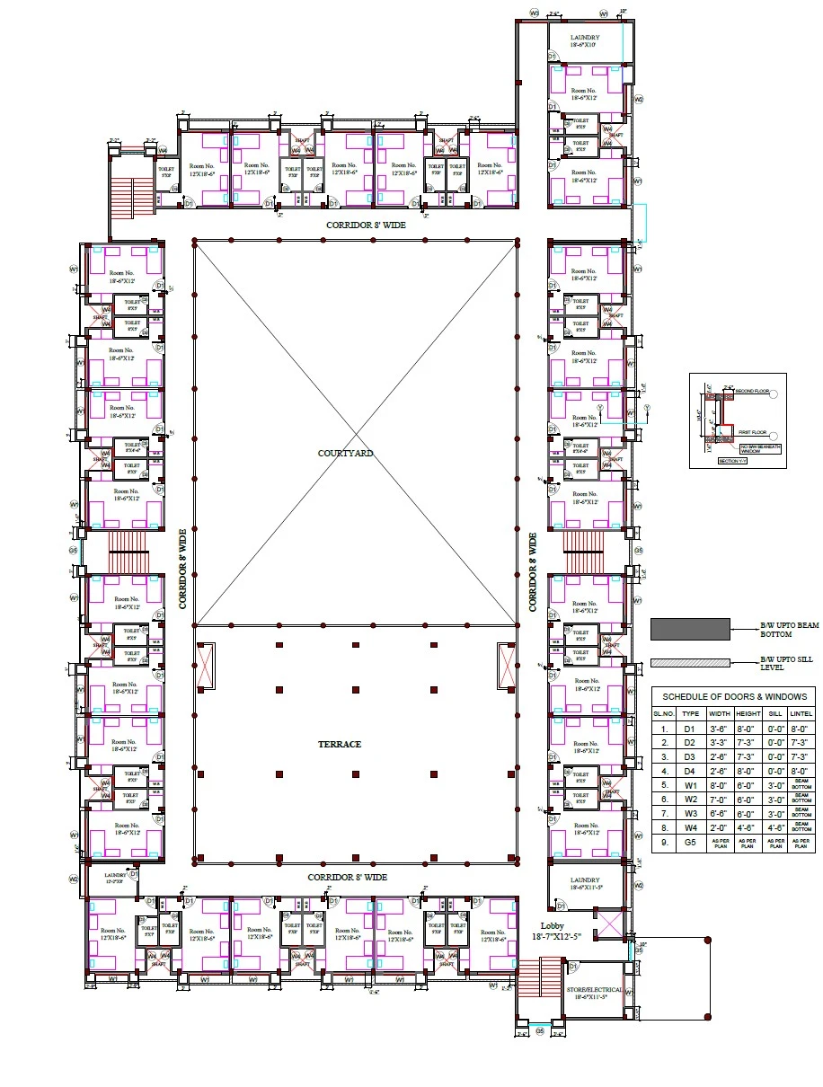
The Nursing Hostel at Katihar Medical College is a completed G+3 residential block designed to provide nursing students with a comfortable, safe, and well-organized living environment. The building is carefully planned around a large open central courtyard, ensuring natural ventilation and daylight reach all corridors and rooms, creating a healthy and uplifting atmosphere for residents.
Each floor features well-proportioned rooms with attached toilets, wide 8-ft corridors for smooth movement, dedicated laundry areas, and strategically placed staircases for efficient circulation and safety. The layout balances privacy for students with optimized operational flow for hostel management.
During the design process, multiple façade and layout options were developed and refined. These concepts were reviewed with the client before moving ahead with the final scheme that best balanced aesthetics, functionality, cost-effectiveness, and long-term durability.
The completed building adopts a clean contemporary façade with recessed windows, soft pastel tones, and vertical design elements that strengthen its institutional identity. The result is a practical, bright, and future-ready residential facility that meets the expectations of institutional, commercial, and private clients alike.
Key Architectural Features
- Large central courtyard providing natural light and ventilation
- Modern façade with recessed window frames and soft color palette
- Efficient room planning with attached toilets
- Wide 8-ft corridors for smooth circulation
- Multiple staircases for safe vertical movement
- Dedicated laundry rooms on each floor
- Balanced zoning of private rooms and service spaces
- Strong institutional architectural expression
